Top-rated HZS Concrete Batching Plant manufacturer

haomei machinery logo

Category

Contact Us

Haomei Aluminium
Tel:+86 0371 65621392
Fax:+86 0371 65621393
E-mail:wade@haomei.biz

Products

Your Position:

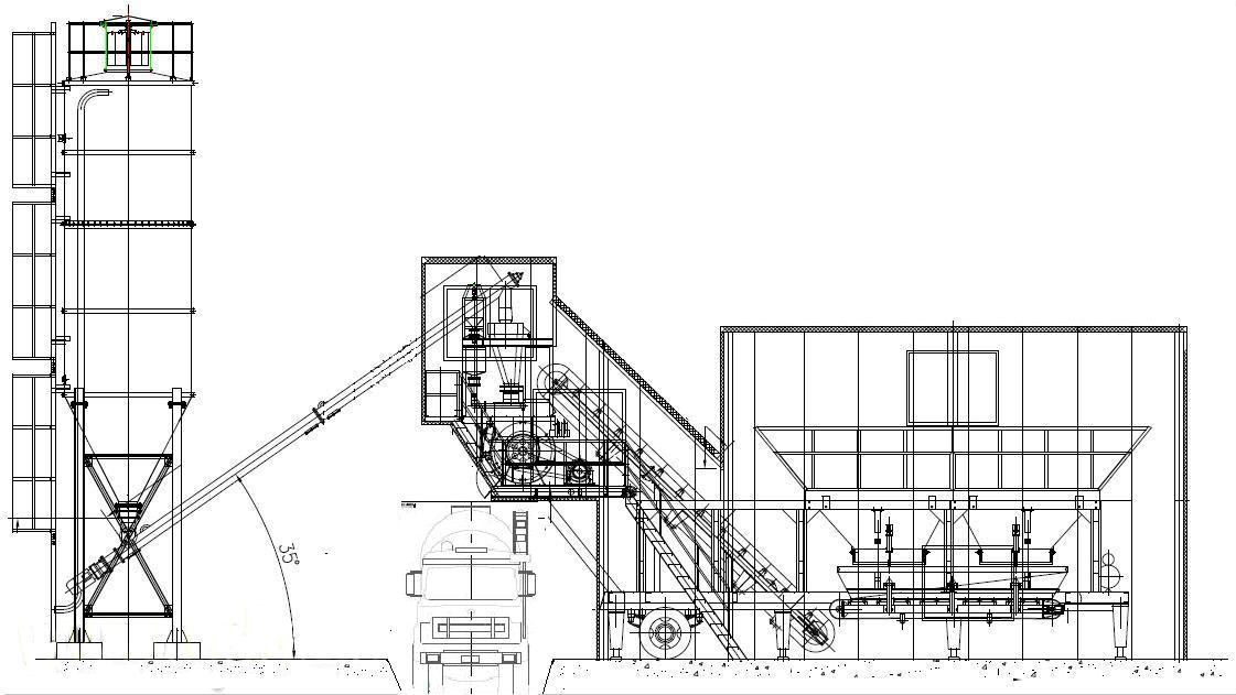
YHZS25 Mobile Concrete Batching Plant

YHZS25 Mobile Concrete Batching Plant
The YHZS25 Mobile Concrete Batching Plant is a compact and highly efficient concrete production unit designed for projects that require frequent site transitions. With a productivity rate of 25m³/h, it integrates the material storage, weighing, conveying, mixing, and control systems into a single trailer unit, allowing for rapid deployment and operation.
Technical Specifications
 
Model YHZS25
Productivity (m³/h) 25
Mixer Model JS500 Double Horizontal Shaft
Max Aggregate Size (mm) ≤ 60/80
Discharge Height (m) 3.8 (Customizable)
Aggregate Bin Capacity (m³) 2 or 3 bins × 3m³
Total Power (kW) ~50
Weighting Accuracy Aggregate ±2%, Cement/Water/Additive ±1%
Control System PLC Automatic / Manual Control
Total Weight (t) ~12 - 15
 

 
Key Features & Advantages
  • Integrated Modular Design: The entire plant is mounted on a chassis with wheels and a towing pin, making it easy to move by a truck head.
  • Rapid Installation: It can be fully operational within 2–3 days of arriving at a new site, significantly reducing downtime.
  • Precision Mixing: Equipped with the JS500 Twin-shaft Concrete Mixer, ensuring high-quality, uniform concrete.
  • Compact Footprint: Perfect for narrow construction sites or rural road projects where space is limited.
  • Low Foundation Cost: Requires minimal ground preparation compared to stationary plants.
 

 
Applications
The YHZS25 is versatile and widely used in:
  1. Bridge & Highway Construction: Ideal for projects that move along a linear path.
  2. Rural Infrastructure: Perfect for small-scale road paving and housing projects.
  3. Precast Concrete Production: Suitable for temporary precast yards.
  4. Remote Sites: Excellent for power plants or water conservancy projects in hard-to-reach areas.
 

 
Pros & Cons
 
Pros
  • High Mobility: Move between sites effortlessly without dismantling complex structures.
  • Cost-Effective: Saves on transportation costs of wet concrete.
  • User-Friendly: Advanced PLC system with a touch screen for easy monitoring.
 
Cons
  • Lower Output: Not suitable for massive infrastructure projects requiring >100m³/h.
  • Maintenance Access: Due to its compact nature, some components require careful access for servicing.
 

 
Packaging & Shipping
We ensure the YHZS25 Mobile Batching Plant reaches you safely:
  • Packing: Standard export sea-worthy packing. Fragile parts (sensors, meters) are packed in reinforced wooden cases.
  • Loading: The main unit fits into 40HQ containers or can be shipped via Ro-Ro (Roll-on/Roll-off) depending on the specific configuration.
  • Protection: Anti-corrosion coating is applied to all exposed steel parts for long-distance maritime transport.

 
Why Choose Our YHZS25 Plant?
As a leading manufacturer, we provide 24/7 technical support and genuine spare parts. For a customized quote or to learn more about our Construction Machinery Solutions, please contact our sales team today.
 

 

Tag: Mobile Concrete Plant   YHZS25  

Send A Message

  • *
  • *
  • Captcha

© Haomei machinery 2025 All Rights Reserved. hhttps://www.hzs-concrete-batching-plant.com
Tel:+86 0371 65621392
E-mail:wade@haomei.biz
1107, No.14 Waihuan Road, CBD, Zhengzhou, China